皇朝万鑫182㎡精装写字间带家具

2026年04月27日更新单价:2.03/m²/天 13.5 万元/年

物业费,采暖费,发票

  • 182m²

    面积

  • 出租

    类型

  • 精装

    装修

  • 写字楼

    类别

万鑫国际大厦

[和平区 - 金廊五里河] 沈阳和平区青年大街390号

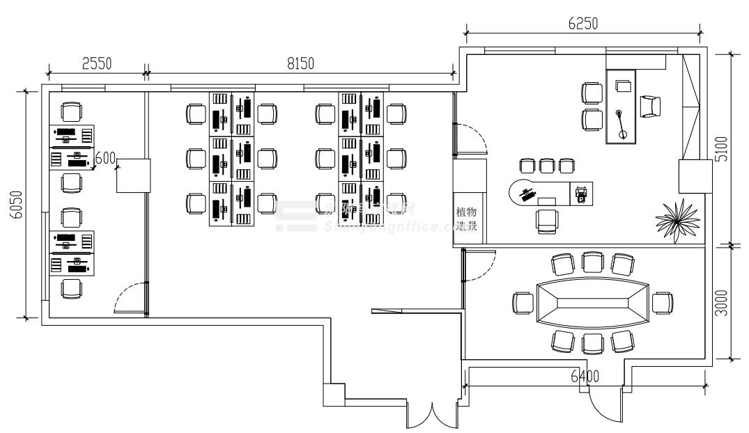
带办公家具带装修户型方正
房源简述:<br>
吴刚头像
吴刚

已认证

13998244277

万鑫国际大厦项目信息

  • 所属办公楼
  • 平层图1
  • 平层图2
  • 平层图3
万鑫国际大厦

万鑫国际大厦
  • 租赁
  • 出售
900-1000元/年/㎡
2.47-2.74元/天/㎡
  • 98-378㎡

    面积区间

  • 写字楼,公寓

    类型

  • 2008年

    建筑年代

  • 物业费用:39元/㎡/月
  • 停车费用:300元/400元台/月,临停5-10元/小时
  • 项目简介:皇朝万鑫国际大厦位于青年大街390号,建筑由三塔楼构成,占地面积为10991.3㎡,总建筑面积为22.7万㎡。主楼A座45层,高度168.4米(顶尖高度为219米),BC座38层,高度149.1米,是目前东北首座白金五星级国际大厦。大厦设有白金五星级国际酒店﹑国际5A写字楼﹑精装豪华公寓﹑国际名品店﹑特色餐饮店﹑国际金融中心等服务功能,为中国首席豪布斯卡复合式亲水建筑。大厦荣获在法国巴黎颁发的2006国际5A级豪华写字楼大奖,是中国首座获得此殊荣的建筑。

项目周边信息