北站cbd精装修带家具拎包办公167㎡

2026年04月27日更新单价:2.62/m²/天 16 万元/年

物业费,采暖费

  • 167m²

    面积

  • 出租

    类型

  • 精装

    装修

  • 写字楼

    类别

金融中心A座

[沈河区 - 北站cbd] 地址:沈阳市沈河区团结路11号

带办公家具带装修付款灵活
房源简述:<br>
吴刚头像
吴刚

已认证

13998244277

金融中心A座项目信息

  • 所属办公楼
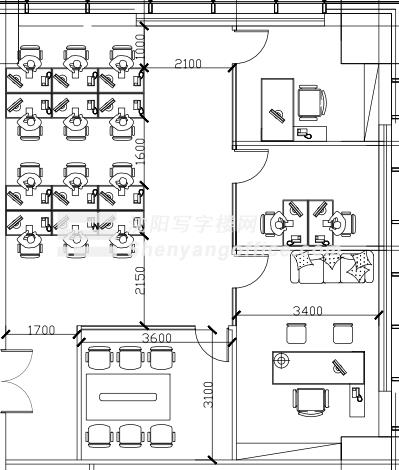
  • 平层图1
金融中心A座

金融中心A座
  • 租赁
  • 出售
750-1000元/年/㎡
2.05-2.74元/天/㎡
  • 123-1540㎡

    面积区间

  • 写字楼

    类型

  • 2017年

    建筑年代

  • 物业费用:26元/㎡/月
  • 停车费用:地下停车位:2600余个 400元/月,临时:5元/小时
  • 项目简介:巨资打造的旗舰写字楼,大堂墙壁、地面均以理石铺就,配以全LED筒灯照明,TOTO品牌洁具,外立面采用LOW-E全钢化玻璃幕墙,折射出商务建筑的时代美感。写字楼奢配近千席地下车位迎送各界精英;9部通力电梯,3米/秒速保障办公效率;风机盘管+新风空调系统,不仅高效节能,更使办公环境远离雾霾侵扰;2520KVA供电容量保障摩天巨擘高速运转。24H安保、监控打造5A金牌物业,出入尽显尊贵气度。

项目周边信息